deco-svg

MRT行天宮站.松江路全新店面即將釋出

NTD 355,000 /Month
Building Management Fee NTD 21,000 /month (Not Included In Rent)

Basic Info

Property ID.
C051910
Layout
0 Bed
0 Bath
Address
Songjiang Rd., Zhongshan Dist., Taipei City
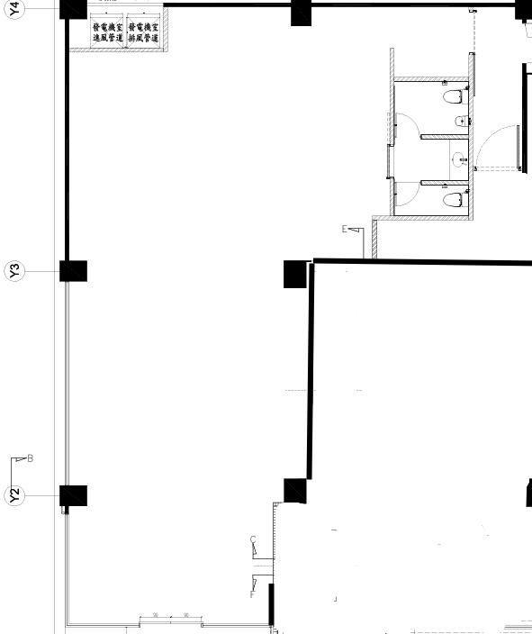
Gross Size
71 Ping / 234.7 / 2,526.4 ft²
MRT
O Xingtian Temple
Net Size
56 Ping / 185.1 / 1,992.7 ft²
Property Type
Commercial
Floor
1 F
Elevator
Contact Agent
Parking
Contact Agent

Details

Store Width(M)
Contact Agent
Restaurants Allowed
Contact Agent
Road Width(M)
Contact Agent
Has Gas Lines
Contact Agent
Floor Height(M)
Contact Agent
Permit
一般零售業.銀行
Loading Area(M)
Contact Agent
Regulations
Comply with legal regulations for business operations, consult for details.
Land Use Zoning
商三特(商2)

Features

使用坪數:約56坪/廁所在內
路寬40米/挑高約3.8米
使照登記:一般零售業.銀行
使用分區:商三特(商2)

Location

Make An Inquiry

For more details or to arrange a viewing, please contact us
avatar
Agent
Answer Chen